[titre]
Prenez le temps de bien étudier ces plans et répondez aux questions ci-dessous.
[texte]
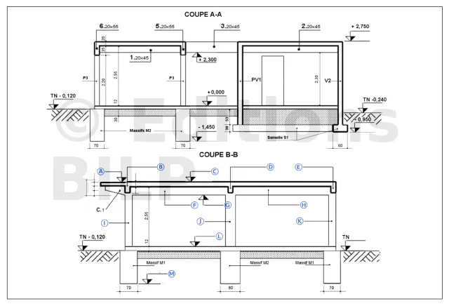
Les plans ci-dessus représentent :
- le plan de coffrage du plancher haut du Rez-de-Chaussée d’un Bâtiment,
- la coupe verticale AA,
- la coupe verticale BB incomplète.
1. Complétez les cotes manquantes sur le plan de coffrage et sur la coupe verticale BB.
A = [trou]"+2,700"[texte]
B = [trou]"1.20 x 45"[texte]
C = [trou]"+2,750"[texte]
D = [trou]"1.20 x 45"[texte]
E = [trou]"1.20 x 45"[texte]
F = [trou]"6.20 x 55"[texte]
G = [trou]"-2,200"[texte]
H = [trou]"6.20 x 55"[texte]
I = [trou]"P2"[texte]
J = [trou]"P3"[texte]
I = [trou]"P1"[texte]
L = [trou]"+-0,000"[texte]
M = [trou]"-2,200"[texte]
2. Quelle est la profondeur des fonds de fouille des massifs M1 et M2 ?
Les fonds de fouille des massifs se trouvent à [trou]"-1,45 m/M"[texte] par rapport au niveau du sol fini de la RdC.
3. Que supportent les semelles S1 et comment peut-on appeler ces fondations ?
Elles supportent [trou]"les voiles"[texte], ce sont des [trou]"semelles filantes"[texte].
4. Quelle est la profondeur des fonds de fouille des semelles S1 ?
Les semelles S1 se trouvent à [trou]"-0,95 m"[texte] de profondeur.
5. Qu’indiquent les repères CV1 et CV2 ?
Les CV1 indiquent les [trou]"chaînages verticaux d’angle"[texte].
L
[...]
- Ainsi vous découvrirez :
- Et de nombreuses illustrations haute-définition :
- mais aussi le téléchargement du guide au format PDF, l’accès au forum pour échanger avec tous les membres ABC Maçonnerie et les collaborateurs du site, les outils de calculs etc. etc.
Pour devenir membre et lire ce tome en particulier
Il vous suffit d’acquérir ce guide :
Pour plus de contenu
Vous pouvez acquérir un de nos PACKS regroupant plusieurs ou la totalité des guides ou tomes et des cours :











