[titre]
Suivant les plans ci-dessous, répondez aux questions suivantes.
[texte]
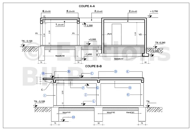
1. Comment nomme-t-on les poteaux P1 ? et que supportent-ils ?
Ce sont des [trou]"poteaux incorporés"[texte], deux d’entre eux portent [trou]"la poutre 2"[texte] et une autre porte [trou]"la poutre 3 et une console C1"[texte].
2. Les murs du RdC sont-ils des murs maçonnés ou des voiles en béton armé ?
Ce sont des [trou]"voiles en béton armé"[texte].
3. Que supportent les poteaux P2 ?
Ils supportent les [trou]"poutres 1, 3, 5 et 6"[texte], mais également les [trou]"consoles C1"[texte].
4. Différenciez les poutres principales et secondaires.
Les [trou]"poutres 1, 2, 3, 5 et 6"[texte] sont des poutres principales et la poutre [trou]"4"[texte] est une poutre seco
[...]
- Ainsi vous découvrirez :
- Et de nombreuses illustrations haute-définition :
- mais aussi le téléchargement du guide au format PDF, l’accès au forum pour échanger avec tous les membres ABC Maçonnerie et les collaborateurs du site, les outils de calculs etc. etc.
Pour devenir membre et lire ce tome en particulier
Il vous suffit d’acquérir ce guide :
Pour plus de contenu
Vous pouvez acquérir un de nos PACKS regroupant plusieurs ou la totalité des guides ou tomes et des cours :











