[titre]
Prenez le temps de bien étudier ces plans et répondez aux questions ci-dessous.
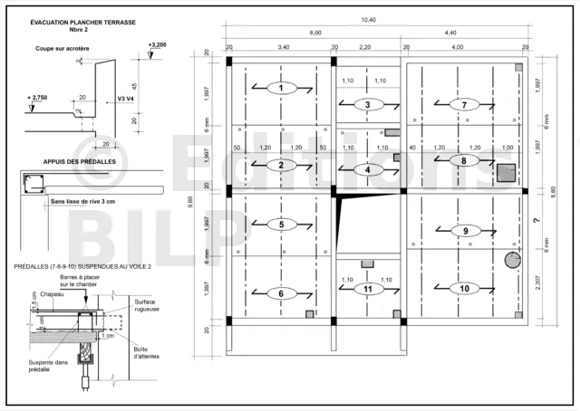
[texte]
1. Dans le tableau ci-dessous, faites l’inventaire des poutres et des consoles ?
| Repère | Nombre | Largeur | Hauteur | Portée | Hauteur sous poutre |
|---|---|---|---|---|---|
| 1 | [trou]"3"[texte] | [trou]"20"[texte] | [trou]"45"[texte] | [trou]"3,40"[texte] | [trou]"2,30"[texte] |
| 2 | [trou]"1"[texte] | [trou]"20"[texte] | [trou]"45"[texte] | [trou]"4,00"[texte] | [trou]"2,30"[texte] |
| 3 | [trou]"2"[texte] | [trou]"20"[texte] | [trou]"45"[texte] | [trou]"2,20"[texte] | [trou]"2,30"[texte] |
| 4 | [trou]"2"[texte] | [trou]"20"[texte] | [trou]"30"[texte] | [trou]"2,20"[texte] | [trou]"2,45"[texte] |
| 5 | [trou]"2"[texte] | [trou]"20"[texte] | [trou]"55"[texte] | [trou]"3,80"[texte] | [trou]"2,20"[texte] |
| 6 | [trou]"2"[texte] | [trou]"20"[texte] | [trou]"55"[texte] | [trou]"3,80"[texte] | [trou]"2,20"[texte] |
| C1 | [trou]"3"[texte] | [trou]"20"[texte] | [trou]"0,50"[texte] | [trou]"0,80"[texte] | [trou]"2,20"[texte] |
2. Que représentent les figures hachurées sur les dalles ? Comment seront elles réalisées ?
Ce sont des[trou]"réservations"[texte]. Elles seront réalisées avec du [trou]"béton cellulaire"[texte].
3. Quelle est la résistance du béton des poutres ?
La classe de résistance des bétons pour les poutres est [trou]"C30/37"[texte].
4. Quel est l’indice de ce plan ?
[trou]"Indice E"[texte]
5. Quelle est la dernière modification ?
[trou]"Relevé d’étanchéité"[texte]
6. Quelle est la hauteur des acrotères ?
[trou]"43 cm"[texte] sur l’intérieur et [trou]"45 cm"[texte] sur l’extérieur.
7. Quelle est l’épaisseur des murs des relevés d’étanchéité ?
L’épaisseur des murs des relevés d’étanchéité est de[trou]"12 cm"[texte].
8. Quelles sont les cotes d’implantation de la réservation ronde par rapport à son périmètre ?
Les cotes d’implantation de la réservation ronde par rapport à son périmètre sont [trou]"1,75 m et 10 cm"[texte].
9. Que représente le rectangle poché de noir entre 3 et 4 ? donner ces dimensions ?
C’est une [trou]"trémie"[texte] de dimensions [trou]"1,90 X 2,20"[texte].
10. Quelle est la différence entre les poutres 5 et 6 ?
Elles sont identiques en dimensions mais [trou]"la poutre 5 porte la poutre 4"[texte].
11. Que représente la zone (a) ?
Elle représente un [trou]"toit terrasse inaccessible"[texte].
13. Le trait de niveau se trouve à + 1,00 m. Déterminer la hauteur par rapport à ce trait de niveau.
| Niveaux | Hauteur |
|---|---|
| Dessous de la dalle | [trou]"1,55"[texte] |
| Fond de coffrage de la poutre 1 | [trou]"1,30/M"[texte] |
| Fond de coffrage de la poutre 4 | [trou]"1,45/M"[texte] |
| Fond de coffrage de la poutre 6 | [trou]"1,20/M"[texte] |
14. Quelle est la section de la bande noyée (BN) ?
La section de la bande noyée est de [trou]"30 x 20 cm"[texte].
15. Quel est le niveau de la dalle et son épaisseur ?
La dalle se trouve à [trou]"+2,750"[texte] et a une épaisseur de [trou]"20 cm"[texte].
16. Sur quels longueurs de voile se réalise le défoncé dans la dalle ? Quel sont ses dimensions ?
Sur la longueur des voiles [trou]"V3 et V4"[texte] avec les dimensions [trou]"20 cm x 2 cm"[texte].
17. Comment sont représentées les files d’étaiement ?
Elles sont représentées par des [trou]"traits mixtes forts"[texte].
18. Combien y a-t-il de files d’étaiement nécessaires pour les prédalles (1,2,5,6), (3,4,11) et (7 à 10) ?
|Prédalles|Nombre de files d’étaiement|
|Les prédalles 1, 2, 5, 6|[trou]"3 files d’étaiement"[texte]|
|Les prÃ
[...]
- Ainsi vous découvrirez :
- Et de nombreuses illustrations haute-définition :
- mais aussi le téléchargement du guide au format PDF, l’accès au forum pour échanger avec tous les membres ABC Maçonnerie et les collaborateurs du site, les outils de calculs etc. etc.
Pour devenir membre et lire ce tome en particulier
Il vous suffit d’acquérir ce guide :
Pour plus de contenu
Vous pouvez acquérir un de nos PACKS regroupant plusieurs ou la totalité des guides ou tomes et des cours :















