[titre]
Fondation
[texte]
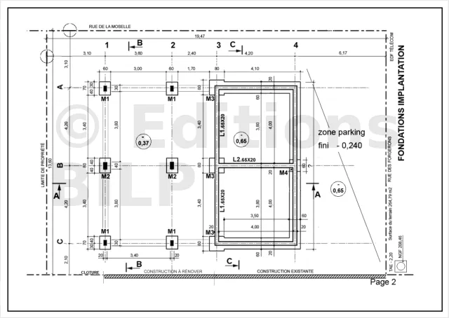
16. Quelle est la particularité des massifs M1 ?
[trou]"Ils sont désaxés"[texte].
17. Quelle est la cote manquante ( ?) longueur de la semelle S1 ?
[trou]"9,00 m"[texte]
18. Combien y a-t-il de niveaux de terrassement de plateforme ?
Il y a[trou]"deux niveaux"[texte] de plateforme [trou]"-0,37"[texte] sous les poteaux et les poutres et [trou]"-0,65"[texte] sous voiles.
19. Quelle sera la pente de talus ? transformez cette valeur en (%) et en degré (°)
| Pente | Pente en (%) | Pente en (°) |
|---|---|---|
| [trou]"1/1"[texte] | [trou]"100%"[texte] | [trou]" 45°"[texte] |
20. Quel est le niveau NGF de référence ? où se trouve-t-il ?
Le niveau NGF de référence est de [trou]"208,46"[texte] qui se trouve sur la [trou]"plaque d’égout"[texte].
21. Faites l’inventaire des éléments de fondation.
| Repère | Nombre | Longueur | Largeur | Hauteur | Niveau de terrassement | Niveau d arase |
|---|---|---|---|---|---|---|
| M1 | [trou]"4"[texte] | [trou]"70"[texte] | [trou]"60"[texte] | [trou]"1,30"[texte] | [trou]"-1,450"[texte] | [trou]"-0,150"[texte] |
| M2 | [trou]"2"[texte] | [trou]"80"[texte] | [trou]"60"[texte] | [trou]"1,30"[texte] | [trou]"-1,450"[texte] | [trou]"-0,150"[texte] |
| M3 | [trou]"3"[texte] | [trou]"80"[texte] | [trou]"80"[texte] | [trou]"1,00"[texte] | [trou]"-1,650"[texte] | [trou]"-0,650"[texte] |
| M4 | [trou]"1"[texte] | [trou]"60"[texte] | [trou]"60"[texte] | [trou]"0,80"[texte] | [trou]"-1,450"[texte] | [trou]"-0,650"[texte] |
| S1 | [trou]"1"[texte] | [trou]"14,20"[texte] | [trou]"60"[texte] | [trou]"30"[texte] | [trou]"-1,050"[texte] | [trou]"-0,650"[texte] |
| Lg1 | [trou]"2"[texte] | [trou]"4,30"[texte] | [trou]"20"[texte] | [trou]"65"[texte] | [trou]"-0,650"[texte] | [trou]"+-0,000"[texte] |
| Lg2 | [trou]"1"[texte] | [trou]"4,40"[texte] | [trou]"20"[texte] | [trou]"65"[texte] | [trou]"-0,650"[texte] | [trou]"+-0,000"[texte] |
| Bêches | [trou]"6"[texte] | [trou]"2de 3.40 2 de 3.00 2 1.70 (16,20m)"[texte] | [trou]"30,20"[texte] | [trou]"40"[texte] | [trou]"-0,55"[texte] | [trou]"+-0,15"[texte] |
22. Que supportent les semelles S1 et comment peut-on appeler ces fondations ?
Elles supportent les [trou]" voiles V1, V2 et V3"[texte], ce sont des [trou]"semelles filantes"[texte].
23. Quelle est la hauteur de béton de propreté sous les semelles S1 ?
La hauteur des bétons de propreté sous les semelles S1 est de [trou]"10 cm"[texte].
24. Quelle est la longueur totale de la semelle S1 (sur son axe) ?
La longueur totale de la semelle S1 est de [trou]"16,00 m"[texte].
25. Que supportent les massifs M1 et M2 ?
Les massifs M1 portent [trou]"les poteaux P2"[texte] et les massifs M2 portent [trou]"les poteaux P3"[texte].
26. Que supportent les massifs M3 et M4 ?
Les massifs M3 portent [trou]"les longrines 1 et 2"[texte], le poteaux [trou]"P1"[texte] et le chaînage vertica
[...]
- Ainsi vous découvrirez :
- Et de nombreuses illustrations haute-définition :
- mais aussi le téléchargement du guide au format PDF, l’accès au forum pour échanger avec tous les membres ABC Maçonnerie et les collaborateurs du site, les outils de calculs etc. etc.
Pour devenir membre et lire ce tome en particulier
Il vous suffit d’acquérir ce guide :
Pour plus de contenu
Vous pouvez acquérir un de nos PACKS regroupant plusieurs ou la totalité des guides ou tomes et des cours :













