[titre]
Prenez le temps de bien étudier ces plans et répondez aux questions ci-dessous.
[texte]
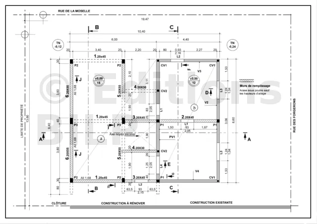
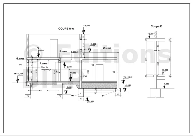
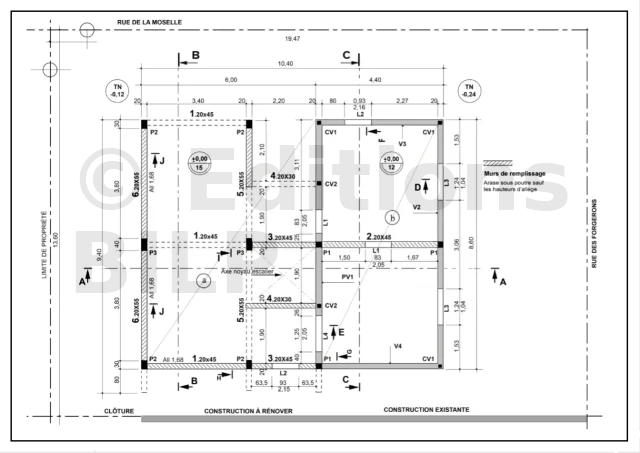
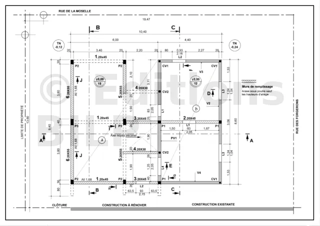
Les plans ci-dessus représentent un bâtiment R+1. Le dossier contient un plan de coffrage du plancher bas du Rez-de-Chaussée et des coupes.
1. Quel est le niveau NGF du plancher bas RDC ?
Le niveau NGF du plancher bas RDC est [trou]"+208,70"[texte].
2. Quelle est la classe d’exposition du béton des voiles ?
La classe d’exposition du béton des voiles[trou]"XC2"[texte].
3. Quelle est l’épaisseur et la composition de la forme du dallage zone (a) ?
L’épaisseur et la composition de la forme du dallage zone (a) est de [trou]"22cm de 0/31,5"[texte].
4. Quels sont les différents types de murs ?
[trou]"Murs banchés et murs maçonnés de remplissage"[texte].
5. Quelle est ou quelles sont les épaisseurs de béton du dallage ?
Les épaisseurs de béton du dallage dans la zone (b) est de [trou]"12 cm"[texte], et dans la zone (a) [trou]"15 cm"[texte].
6. Quelle est la longueur de retombée du linteau L4 ?
Le linteau L4 a une retombée de [trou]"50 cm"[texte].
7. Quelle est la hauteur de l’ouverture sous L2 ?
La hauteur de l’ouverture sous L2 [trou]"2,15"[texte].
8. Qu’indiquent les repères CV1 ?
[trou]"Chaînages verticaux d’angle"[texte]
9. Qu’indiquent les repères CV2 ?
[trou]"Chaînages verticaux incorporés"[texte]
10) Que supportent ces CV2 ?
Ils supportent la [trou]"poutre 4"[texte]
11. Dans le tableau ci-dessous, faites l’inventaire des poteaux ?
| Repère | Nombre | section | Hauteur |
|---|---|---|---|
| P1 | [trou]"2"[texte] | [trou]"20 x 20"[texte] | [trou]"2,75 + 0,65 - 0,45 = 2,95"[texte] |
| P1 console | [trou]"1"[texte] | [trou]"20 x 20"[texte] | [trou]"2,75 + 0,65 - 0,55 = 2,85"[texte] |
| P2 | [trou]"4"[texte] | [trou]"30 x 20"[texte] | [trou]"2,75 + 0,15 - 0,55 = 2,35"[texte] |
| P3 | [trou]"2"[texte] | [trou]"30 x 20"[texte] | [trou]"2,75 + 0,15 - 0,55 = 2,35"[texte] |
12. Quelles sont les dimensions des ouvertures sous les poutres 6 ?
[trou]"3,80 x 0,52"[texte]
13. Quelle est la hauteur à couler des voiles 2,3,4 ?
[trou]"3,85 m"[texte]
14. Quelle est la particularité des fenêtres sur V2 ?
Elles comportent [trou]"Une feuillure 12 x 12"[texte]
15. Que veut dire PV11 ?
[trou]"Poutre voile"[texte]
16. Sur quels éléments repose ce PV1 ?
Sur les [trou]"massifs M3"[texte].
17. Quelle est la hauteur de mur en dessous des ouvertures sous L3 ?
[trou]"1,76"[texte]
18. Comment nomme-t-on les poteaux P1 et CV2 ? que supportent-ils ?
Ces sont des [trou]"poteaux incorporés"[texte], ils supportent [trou]"les poutres 2, 3 et la console C1"[texte].
19. Que supportent les poteaux P2 ?
Ils supportent [trou]"les poutre 1, 3, 5, 6 et la console C1"[texte].
20. Quelles sont les dimensions (longueur et hauteur) de l’ouverture sur la coupe H ?
[trou]"3,4
[...]
- Ainsi vous découvrirez :
- Et de nombreuses illustrations haute-définition :
- mais aussi le téléchargement du guide au format PDF, l’accès au forum pour échanger avec tous les membres ABC Maçonnerie et les collaborateurs du site, les outils de calculs etc. etc.
Pour devenir membre et lire ce tome en particulier
Il vous suffit d’acquérir ce guide :
Pour plus de contenu
Vous pouvez acquérir un de nos PACKS regroupant plusieurs ou la totalité des guides ou tomes et des cours :















