Voici un extrait gratuit du guide de construction :
[titre]
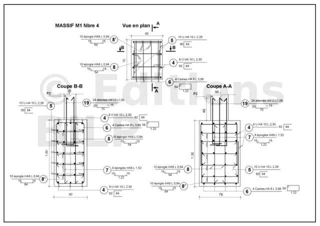
Compléter les repères du massif M4 sur le plan et mettre da
[...]
....Il y a une suite !
Pour lire la suite de l'article, devenez Membre
- Ainsi vous découvrirez :
- Et de nombreuses illustrations haute-définition :
- mais aussi le téléchargement du guide au format PDF, l’accès au forum pour échanger avec tous les membres ABC Maçonnerie et les collaborateurs du site, les outils de calculs etc. etc.
Pour devenir membre et lire ce tome en particulier
Il vous suffit d’acquérir ce guide :
Pour plus de contenu
Vous pouvez acquérir un de nos PACKS regroupant plusieurs ou la totalité des guides ou tomes et des cours :














