[titre]
Prenez le temps de bien étudier ces plans et répondez aux questions ci-dessous
[texte]
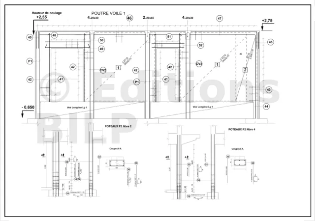
1. Quel est le repère manquant sur P1 et CV2 ?
[trou]"Repère 3 ou 20"[texte]
2. Quelles sont les anomalies sous P1 incorporé dans voile V2 ?
[trou]"Le diamètre des attentes devrait être du 10 alors qu’ils sont en 8"[texte]
3. Que devra t on faire pour y remédier ?
[trou]"Placer des attentes correctes dans la semelle S1"[texte]
4. D’où démarrent les CV1 et P1 ?
[trou]"Les CV1 démarrent au dessus de la longrine, les P1, au dessus du massif M3 ou de la semelle S1"[texte]
5. Que veut dire Lr = 40 sur les plans des P1, P2 et P3 ?
[trou]"Longueur de recouvrement égale à 40 cm"[texte].
6. Quels sont les espacements des cadres des poteaux P2 ?
[trou]"4 x 10, 1 x 15, 9 x 20"[texte]
7. Quelles sont les différences des aciers entre P2 et P3 ?
[trou]"Les cadres ne sont pas de la même longueur et il y a des étriers sur P3"[texte].
8. Que représentent les chiffres inscrits dans un carré sur le plan de PV1 ?
[trou]"Les numéros de repère du treillis soudé"[texte]
9. Pourquoi ces chiffres sont-ils différents alors que c’est la même référence de treillis ?
[trou]"Ce n’est pas les mêmes dimensions"[texte].
10. Que représentent et à quoi servent les aciers repérés 45, 46 et 47 (PV1) ?
[trou]"C’est le chaînage horizontal 46,47 de la dalle et leurs aciers de liaison (équerres 45)"[texte]
11. Pourquoi les aciers 45, 46 et 47 sont dessinés sur ce voile alors que la hauteur de Bétonnage se trouve à +2,55 (PV1) ?
[trou]"L’amorce des fers doivent être pris dans le béton, le reste sera enrobé avec le coulage de la dalle"[texte].
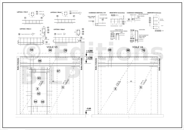
12. Dans le voile V2, que représentent les repères 53 et 54 ?
[trou]"Les renforts horizontaux et verticaux"[texte].
13. Dans le voile V2, Que représentent les repères 55, 56 et 57 ?
[trou]"Les linteau L3"[texte]
14. Dans le voile V2, Quelle est la longueur de recouvrement du treillis soudé ?
[trou]"40 cm"[texte]
15. Comme le voile est coulé avec son acrotère, comment pratique t on pour les aciers de reprise de la dalle ?
[trou]"Boîtes d’attente"[texte]
16. Que représentent les aciers repérés 60 ?
[trou]"Ce sont les barres filantes du chaînage de la dalle"[texte].
17. Quels sont les repères représentant le ferraillage de l’acrotère ?
[trou]"59, 60, 69, 70 + ST10"[texte].
18. Pourquoi ne les retrouve t on pas sur PV1 ?
[trou]"Il n’y a pas d’acrotère mais le mur de l’étage"[texte].
19. Sur le plan du dallage, à quoi sert le ST25C ?
[trou]"Renforts sous murs de remplissage"[texte]
20. Quel est le recouvrement du treillis ?
[trou]"40 cm"[texte]
21. Quel acier vient compléter ce ferraillage ?
[trou]"Repère 20 attentes de cv mur de remplissage"[texte]
22. Sur quels murs le dallage repose-t-il ?
[trou]"Aucun, c’est un dallage auto porté avec joint de dilution 2 cm"[texte]
23. Quel est le niveau d’arase des murs de remplissage ?
[trou]"+ 1,68"[texte]
24. Faites l’inventaire de ce Treillis soudé.
|Repère|Référence|Nombre|Longueur|largeur|
|6|[trou]"ST10"[texte]|[trou]"4"[texte]|[trou]"4,80"[texte]|[trou]"2,40"[texte]|
|7|[trou]"ST10"[texte]|[trou]"4"[texte]|[trou]"1,60"[texte]|[trou]"2,40"[texte]|
|8|[trou]"ST25C"[texte]|[trou]"2"[texte]|[trou]"3,80"[texte]|[trou]"60"[texte]|
|9|[trou]"ST25C"[texte]|[trou]"3"[texte]|[trou]"2,20"[texte]|[trou]"60"[texte]|
|10|[trou]"ST25C"[texte]|[trou]"1"[texte]|[trou]
[...]
- Ainsi vous découvrirez :
- Et de nombreuses illustrations haute-définition :
- mais aussi le téléchargement du guide au format PDF, l’accès au forum pour échanger avec tous les membres ABC Maçonnerie et les collaborateurs du site, les outils de calculs etc. etc.
Pour devenir membre et lire ce tome en particulier
Il vous suffit d’acquérir ce guide :
Pour plus de contenu
Vous pouvez acquérir un de nos PACKS regroupant plusieurs ou la totalité des guides ou tomes et des cours :














