

Les différents plans

- Le guide : 18.86 € HT
- PDF à TÉLÉCHARGER
- Lisez-le partout, sans connexion
- Imprimez-le si vous voulez
TOME II : la lecture des plans
- Glossaire
- Les généralités
- Les listes des abréviations et les définitions
- Le déroulement de l’opération de construction
- Les différents intervenants
- Les types de marchés
- Les bases du dessin technique
- Les différents plans
- Les pièces constitutives d’un dossier de construction
- Les plans de façades
- Les plans de masse
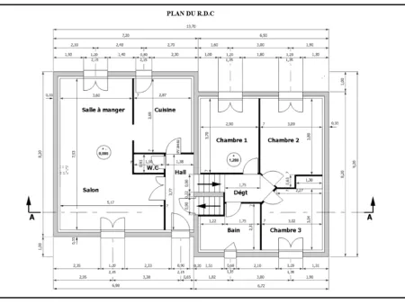
- Les plans de niveaux
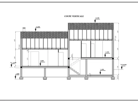
- Les coupes
- Les plans d’exécution
- Les Généralités
- Les plans de coffrage
- Les plans de fondation
- Les plans de plancher
- Les poteaux et les poutres
- Les plans de ferraillage
- Les Évaluations