[texte]
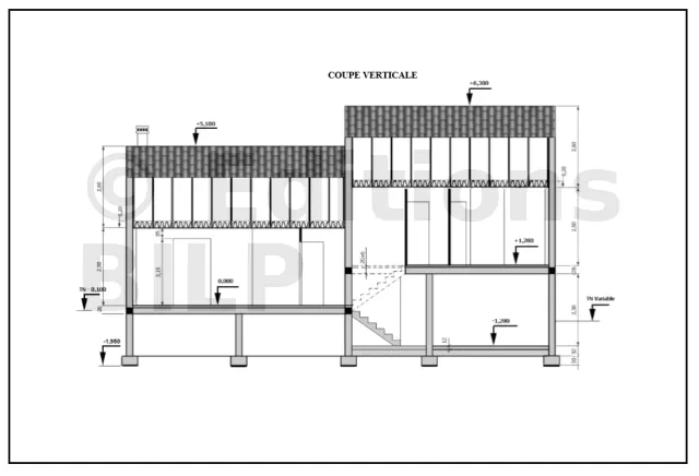
1. Pourquoi une des deux volées d’escalier est-elle en pointillée ?
Car elle est [trou]"derrière"[texte] le plan coupe.
2. Quelle est la profondeur du terrassement des fouilles des fondations ?
Les fonds de fouilles des fondation se trouvent à [trou]"-1,95"[texte] au dessous du niveau [trou]"0,000"[texte] du sol fini de la RdC.
3. Quelle est l’épaisseur de la forme du dallage ?
Elle a une épaisseur de [trou]"20 cm"[texte].
4. Pourquoi le niveau de terrassement est-il à -1.95 m alors que le niveau inférieur des semelles nous est indiqué - 1.28 dessus dallage (+ 0.32 épaisseur dallage +0.30 hauteur semelle) soit - 1.90 m ?
Car sous la semelle, il y a [trou]"5 cm de béton de propreté"[texte].
5. Quelles sont les niveaux des faîtages ?
Les faîtages de la toiture se trouvent à [trou]"+ 5,100"[texte] et [trou]"+6,380"[texte].
6. Quelle est l’épaisseur de l’isolation du comble ?
L’isolation du comble a une épaisseur de [trou]"20 cm"[texte].
7. Quelle est la hauteur du vide sanitaire ?
La hauteur d
[...]
- Ainsi vous découvrirez :
- Et de nombreuses illustrations haute-définition :
- mais aussi le téléchargement du guide au format PDF, l’accès au forum pour échanger avec tous les membres ABC Maçonnerie et les collaborateurs du site, les outils de calculs etc. etc.
Pour devenir membre et lire ce tome en particulier
Il vous suffit d’acquérir ce guide :
Pour plus de contenu
Vous pouvez acquérir un de nos PACKS regroupant plusieurs ou la totalité des guides ou tomes et des cours :









