[texte]
1. Combien cette maison comporte-elle de niveaux ?
Il y a [trou]"3 niveaux"[texte].
2. Que veut dire VS sur le plan du sous-sol ?
Cela signifie V [trou]"Vide"[texte] S[trou]"Sanitaire"[texte].
3. Quelles sont les sections des poutres 1 et 2 dans le sous-sol ?
Les poutres ont une section de [trou]"20 par 40 cm"[texte].
4. Quelles sont les longueurs des poutres 1 et 2 dans le sous-sol ?
La longueur de la poutre 1 est de [trou]"2,46 m"[texte] et celle de la poutre 2 est de [trou]"3,36 m"[texte].
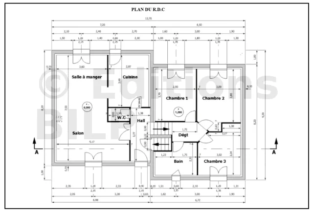
5. A quoi correspond le cercle indiquant +- 0,00 ?
Cela indique la [trou]"cote de niveau du salon , de la salle à manger, de la cuisine, du WC et de la hall"[texte] dans la RdC.
6. A quoi correspond le cercle indiquant + 1,280 ?
Cela indique la [trou]"cote de niveau des chambres, du dégagement et de la salle de bain"[texte] dans la deuxième niveau de la RdC.
7. Que signifie PV 204/83 dans la cuisine ?
Cela signifie, une [trou]"Porte vitrée de 2,04 m de hauteur et 83 cm de large"[texte]
8. Quelle est la surface de la cuisine ?
La cuisine a u
[...]
- Ainsi vous découvrirez :
- Et de nombreuses illustrations haute-définition :
- mais aussi le téléchargement du guide au format PDF, l’accès au forum pour échanger avec tous les membres ABC Maçonnerie et les collaborateurs du site, les outils de calculs etc. etc.
Pour devenir membre et lire ce tome en particulier
Il vous suffit d’acquérir ce guide :
Pour plus de contenu
Vous pouvez acquérir un de nos PACKS regroupant plusieurs ou la totalité des guides ou tomes et des cours :











