Les planchers préfabriqués
Les planchers préfabriqués sont composés de plusieurs éléments préfabriqués, notamment des poutrelles, des entrevous ou des hourdis. La dalle de répartition ou la dalle de compression est mise en œuvre sur les éléments préfabriqués et contient des armatures. La réalisation de cette dalle est généralement confiée au fournisseur du plancher, qui est souvent un négociant en matériaux.
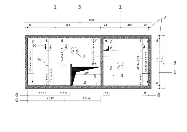
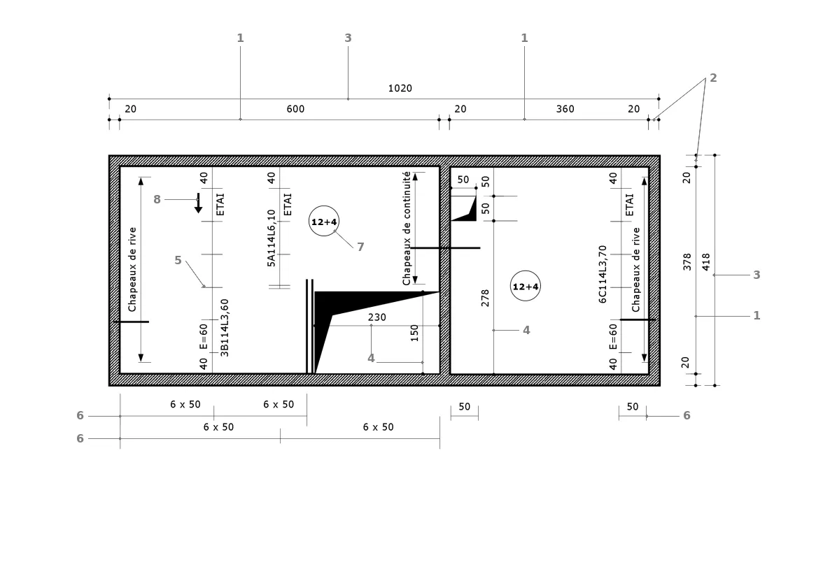
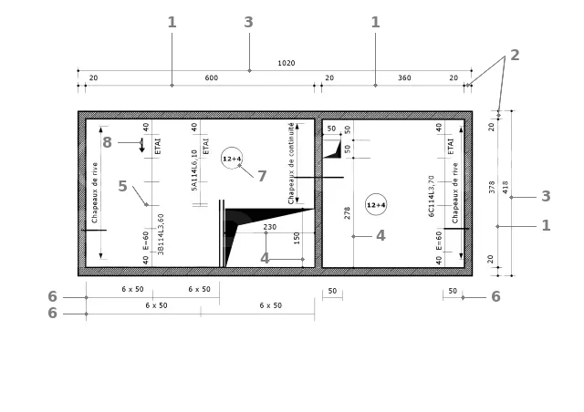
Le plan de pose d’un plancher préfabriqué est à la fois :
- Un plan de coffrage qui indique la configuration et les dimensions des coffrages nécessaires pour la mise en place du plancher préfabriqué.
- Un plan d’étaiement qui spécifie les points d’appui et les systèmes d’étaiement nécessaires pour soutenir le plancher durant son installation.
- Un plan de ferraillage qui indique en détails le positionnement des armatures dans le plancher préfabriqué, garantissant ainsi sa résistance.
La cotation du plan de coffrage doit inclure les éléments suivants :
| 1. les cotes de portée représentent les distances entre les points d’appui, 2. les épaisseurs des murs extérieurs et des murs de refend, 3. les cotes totales des parties principales ainsi que les dimensions totales des bâtiments, | 4. les dimensions des trémies et des réservations, avec leur positionnement, 5. les axes des poutrelles, 6. l’implantation des étais, 7. l’épaisseur du plancher, 8. le sens de la pose des hourdis. |
La position des poutrelles est indiquée par leur repérage et est cotée en fonction de l’axe de la première poutrelle par rapport au mur porteur, suivie de la valeur de l’entraxe E des autres poutrelles. Une flèche précise le sens de pose.
Un plan de coffrage
Les poutrelles sont repérées selon les notations 5A114L6,10 (exemple).
| Notation | Désignation |
|---|---|
| 5 A 114 L6,10 | Indique le nombre de poutrelles. Représente la zone (sur le plan de pose ci-dessus, il y a 3 zones A, B et C). - Les deux premiers chiffres (11) indiquent la hauteur de la poutrelle. - Le dernier chiffre (4) représente le nombre de fils de précontrainte ou d’aciers porteurs. Indique la longueur de la poutrelle. |
Le départ de l’axe de la première poutrelle se situe à 40 cm du nu de l’appui dans les zones A et C. Ainsi deux poutrelles encadrent la réservation de 50 x 50 cm du trou d’homme pour
[...]
- Ainsi vous découvrirez :
- *Les planchers préfabriqués
- **Un plan de coffrage
- **Un plan d'étaiement et un plan de ferraillage
- *Les planchers sur prédalles
- Et de nombreuses illustrations haute-définition :
- mais aussi le téléchargement du guide au format PDF, l’accès au forum pour échanger avec tous les membres ABC Maçonnerie et les collaborateurs du site, les outils de calculs etc. etc.
Pour devenir membre et lire ce tome en particulier
Il vous suffit d’acquérir ce guide :
Pour plus de contenu
Vous pouvez acquérir un de nos PACKS regroupant plusieurs ou la totalité des guides ou tomes et des cours :












