Dans le cas d’un plancher à poutrelles et hourdis, seules les armatures de la dalle de compression et les renforts pour les chevêtres et les trémies sont représentés sur les plans d’armatures. Leur représentation et leur repérage suivent les règles conventionnelles régissant ce type de plans. Les panneaux de treillis soudé sont rarement représentés, bien que leur quantité requise soit indiquée dans le document de synthèse (consultez l’article sur les plans de plancher). De plus, un ou deux chapeaux sont présents sur chaque poutre, permettant aux barres de pénétrer dans le chaînage de rive.
Le plan d’armatures des planchers avec des prédalles en béton armé ou précontraintes contient les informations suivantes : le type d’acier ou des barres utilisés, le type de panneaux de treillis soudé, le diamètre des aciers, la longueur en attente à chaque extrémité, les renforts d’armature et les ancres de levage et de protection.
Le plan de pose des armatures complémentaires tient compte du repérage effectué sur les prédalles du plancher. Il spécifie les armatures de rive et les armatures sur les appuis intermédiaires. Il indique les renforts ou les attentes autour des trémies et donne les indications pour les coutures à placer entre les prédalles. Le plan précise également le nombre et le diamètre des barres de renfort autour des réservations.
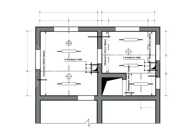
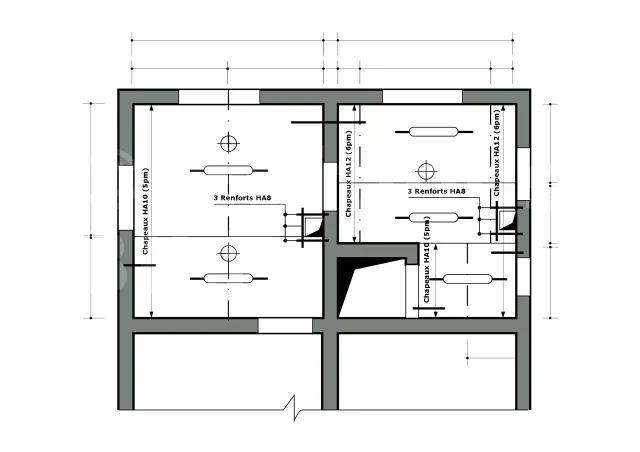
Les armatures des dalles et des planchers en dalles pleines.
Les armatures des dalles et des planchers en dalle pleine sont représentées à l’aide d’un plan d’ensemble ainsi qu’une coupe verticale. Deux types de représentation sont possibles :
- La première option consiste à utiliser deux dessins distincts : l’un pour les lits d’armatures inférieures et l’autre pour les lits d’armatures supérieures. Dans ce cas, la technique de représentation des armatures répétitives est employée.
[...]
- Ainsi vous découvrirez :
- **Les armatures des dalles et des planchers en dalles pleines.
- Et de nombreuses illustrations haute-définition :
- mais aussi le téléchargement du guide au format PDF, l’accès au forum pour échanger avec tous les membres ABC Maçonnerie et les collaborateurs du site, les outils de calculs etc. etc.
Pour devenir membre et lire ce tome en particulier
Il vous suffit d’acquérir ce guide :
Pour plus de contenu
Vous pouvez acquérir un de nos PACKS regroupant plusieurs ou la totalité des guides ou tomes et des cours :




















