Toutes ces valeurs correspondent aux dimensions réelles du bâtiment. Les dimensions des éléments nécessitant une grande précision sont systématiquement indiquées. Les cotations revêtent une importance primordiale, car les plans d’un bâtiment sont représentés à travers des vues et des coupes qui doivent comporter des indications dimensionnelles. Par conséquent, afin d’obtenir les dimensions réelles requises pour la construction, il est essentiel de lire directement les valeurs sur les vues, sans avoir à effectuer de calculs pour déterminer les longueurs exactes en fonction de l’échelle utilisée.
Chaque côté comprend les éléments graphiques suivants :
- Une ligne de cote tracée en trait fin, parallèle à la dimension à coter.
- Deux lignes d’attache en trait fin, perpendiculaires à la dimension à coter. Elles délimitent la ligne de cote et la relient au dessin. Les lignes d’attache dépassent de 2 à 5 mm au-delà des lignes de cote.
- Des points et/ou des flèches et/ou des barres à 45°, placés aux intersections de la ligne de cote et des lignes d’attache.
- Une dimension chiffrée indiquant toujours la dimension réelle. Ce chiffre est positionné au-dessus de la ligne de cote si celle-ci est horizontale, à gauche de la ligne si celle-ci est verticale. La lecture de la dimension se fait toujours de bas en haut. Sauf dans certains cas particuliers, la dimension est approximativement placée au milieu de la ligne.
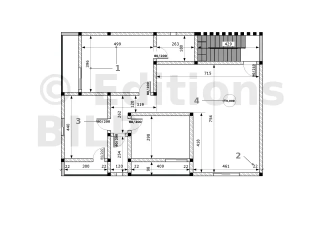
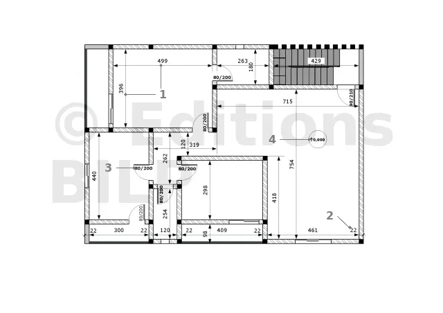
Les cotations pour une bonne lecture du dessin
Elles fournissent les informations suivantes :
1. Les dimensions de chaque pièce, des placards et des cages d’escalier.
2. Les épaisseurs des murs extérieurs, des murs de refend et des cloisons.
3. Les dimensions des portes et des passages.
4. Le niveau supérieur fini d’un plancher est indiqué dans un cercle en trait fin et exprimé en mètres avec trois décimales.
Parfois, l’emplacement des appareils sanitaires peut également être indiqué.
Les cotes d’implantation
L’utilisation de cotes cumulés est très pratique pour l’implantation des murs ou des poteaux et des fondations.
Les cotes d’implantation servent à positionner les axes des murs et sont représentées sur les plans par des axes verticaux numérotés (1) et des axes horizontaux lettrés (2).
L’implantation des murs et des poteaux est généralement indiquée sur le plan de fondation par des cotes cumulées (3) à partir de l’origine d’implantation. L’origine est généralement l’un des angles du bâtiment, et deux lignes de cotes sur deux façades suffisent pour implanter l’ensemble du bâtiment.
Les cotes sont placées perpendiculairement à la ligne de cote et cumulées à partir de l’origine jusqu’à l’axe du mur ou du poteau concerné.
Les cotes de niveau
Les cotes de niveau sont des mesures verticales cumulées qui indiquent l’altitude de certaines parties de la construction par rapport à une origine (désignée ± 0,000 dans la nouvelle norme).
Cette origine peut être :
- le niveau N.G.F. (Nivellement Général de France),
- le sol fini du RDC de la construction,
Les cotes de niveau sont accompagnées d’un signe en fonction de leur position par rapport à l’origine :- au dessus du niveau ± 0,000, signe positif (+)
- au dessous du niveau ± 0,000, signe négatif (-)
Les cotes de niveau sont exprimées en mètres avec trois décimales selon la nouvelle norme (deux décimales selon l’ancienne norme). Elles doivent être indiquées sur tous les plans horizontaux et les coupes verticales de la construction. Sur les plans de coupe et d’élévation, elles sont représentées par une flèche et une cote d’altitude. Sur les vues en plan, elles sont représentées par un cercle et une cote d’altitude.
Les cotes de niveau doivent être indiquées aux emplacements suivants :
- sur les fonds de fouille,
- sur le terrain naturel,
- au-dessus des différents planchers, des terrasses et d
[...]....Il y a une suite !
- Ainsi vous découvrirez :
- *Les cotations pour une bonne lecture du dessin
- *Les cotes d’implantation
- *Les cotes de niveau
- Et de nombreuses illustrations haute-définition :
- mais aussi le téléchargement du guide au format PDF, l’accès au forum pour échanger avec tous les membres ABC Maçonnerie et les collaborateurs du site, les outils de calculs etc. etc.
Pour devenir membre et lire ce tome en particulier
Il vous suffit d’acquérir ce guide :
Pour plus de contenu
Vous pouvez acquérir un de nos PACKS regroupant plusieurs ou la totalité des guides ou tomes et des cours :



























