Quelque soit le projet de construction, une maison individuelle, un bâtiment administratif, un immeuble, une rénovation, une usine, un bâtiment agricole ou industriel, etc... ; les documents nécessaires à la réalisation d’une construction sont de deux types :
- les pièces graphiques,
- les pièces écrites.
Les pièces graphiques
Avant toute construction, un permis de construire doit obligatoirement être demandé auprès de la mairie de la commune où aura lieu la construction. La demande de permis de construire s’accompagne d’un dossier constitué de plans de construction.
- Un plan de situation représente la zone du territoire communal où se trouve le terrain destiné à accueillir la construction. Ce plan a pour objectif de faciliter la localisation du terrain au sein de la commune, en permettant notamment de repérer les routes, les axes principaux, et autres éléments de repère.
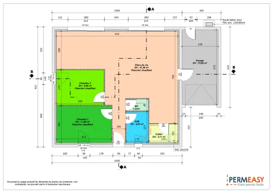
- Un plan de masse représente les éléments suivants :
- L’emplacement précis de la construction sur le terrain, en indiquant sa position relative par rapport aux limites et aux caractéristiques du terrain environnant. [1]
- L’identification du propriétaire du terrain, permettant de clarifier les droits de propriété et de faciliter les échanges d’informations avec les autorités compétentes.
- Les dimensions et la surface du terrain, qui permettent d’évaluer la superficie disponible pour la construction et de prendre en compte les restrictions éventuelles liées à la taille du terrain.
- Les numéros cadastraux ou de lots, qui sont des références
administratives permettant d’identifier le terrain de manière précise et unique.
- L’orientation du terrain, qui peut être indiquée par des points cardinaux ou des indications spécifiques, afin de prendre en compte les conditions d’ensoleillement, les vents dominants, etc.
- Les rues d’accès, qui sont représentées pour faciliter la compréhension des voies de circulation et l’accessibilité au terrain.
Les plans d’exécution comportent généralement :
- un plan d’implantation
- un plan de coffrage
- un plan de ferraillage et la nomenclature des aciers
- un plan de toiture
- un plan de réseau
- un plan d’installation thermique et sanitaire
- un plan d’électricité
- un plan des menuiseries
- un plan d’aménagement intérieur
Les pièces écrites ou Cahier de charge
Le document annexé à un marché qui énonce l’ensemble des conditions et obligations liées à l’exécution d’un contrat de travaux .
- Le cahier des clauses administratives est un document faisant partie du dossier d’appel d’offres d’un marché public ou privé. Il décrit les aspects administratifs et contractuels du contrat de travaux.
- Le cahier des clauses techniques (C.C.T) est un document qui fait partie du dossier d’appel d’offres d’un marché public ou privé. Il spécifie les exigences techniques et les spécifications techniques du contrat de travaux.
- Le cahier des clauses techniques générales (C.C.T.G) [2] fournit un cadre de référence commun pour les différents contrats de travaux.
- Le cahier des clauses techniques particulières (C.C.T.P) [3] est élaboré en prenant en compte les particularités du projet et les spécifications définies par le maître d’ouvrage.
- Le cahier des prescriptions techniques (C.P.T) est un document qui regroupe l’ensemble des règles techniques et professionnelles relative
[...]....Il y a une suite !
- Ainsi vous découvrirez :
- *Les pièces graphiques
- *Les pièces écrites ou Cahier de charge
- Et de nombreuses illustrations haute-définition :
- mais aussi le téléchargement du guide au format PDF, l’accès au forum pour échanger avec tous les membres ABC Maçonnerie et les collaborateurs du site, les outils de calculs etc. etc.
Pour devenir membre et lire ce tome en particulier
Il vous suffit d’acquérir ce guide :
Pour plus de contenu
Vous pouvez acquérir un de nos PACKS regroupant plusieurs ou la totalité des guides ou tomes et des cours :



















